
Semeando sonhos,
germinando histórias,
colhendo memórias.
Create Your First Project
Start adding your projects to your portfolio. Click on "Manage Projects" to get started
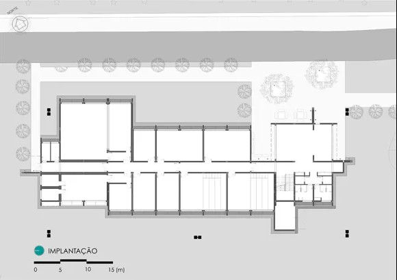
Edifício para Expansão do Departamento de Música da Faculdade de Filosofia, Ciências e Letras – USP
Tipo de projeto
Arquitetura - Projeto de Edifício Institucional
Data
2009
Local
USP Ribeirão Preto - SP
Projeto
Arq. Renata Gobato Buffa - Graco Projetos
Afim de expandir o Departamento de Música da Faculdade de Filosofia, Ciências e Letras da USP – Campus Ribeirão Preto, a arquiteta Renata Gobato Buffa, à época parte da equipe da Graco Projetos, participou do desenvolvimento de todo o projeto do edifício de cerca de 1.200 m², desde o estudo preliminar até sua finalização, nos projetos executivos.
O programa, distribuído em dois pavimentos, abriga salas de aulas teóricas e práticas, estúdios para estudo individual e coletivo, sala para orquestra e coro, bem como estúdio de gravação, processamento e sala de informática, além dos espaços de apoio como sanitários, copa e sala de servidores.
Concebido em estrutura metálica e fechamento em alvenaria, a grande preocupação era garantir o isolamento acústico entre as salas de aula. Após alguns estudos, chegou-se à solução de fazer, onde necessário, paredes duplas em alvenaria de tijolos maciços com um colchão de ar entre elas. Assim, a reverberação do som seria abatida, e as aulas e ensaios poderiam correr tranquilamente, sem interferências de uma sala para outra. Além disso, em todas as salas foram previstos forros de fibra mineral, que tem um bom desempenho acústico. O pé direito dos ambientes é de 3,00 m, com um entreforro de cerca de 60 cm para passagem de instalações elétricas, hidráulicas e mecânicas.
A volumetria do edifício é marcada por dois grandes planos de vidro localizados no hall de entrada de pé-direito duplo e área de convívio, por algumas empenas cegas pintadas de cor diferente do restante do prédio, e também pelos brises que compõem as fachadas nordeste e sudoeste.

















